669 ARMSTRONG BLVD
MILTON, ON L9T 0H4
Located in the jewel of the original Mattamy “Hawthorne Village” and perfectly situated in the established Beaty neighbourhood, this home has every amenity close by including parks, schools, shopping and just a short drive to highway 401.
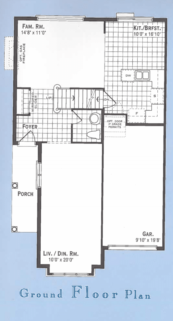
This detached 3 Bedroom 2.5 Bath home is beautifully updated and move-in ready.
Pulling into your double wide driveway you see your 2-car garage and spacious covered porch with grand double doors. Imagine yourself enjoying fresh air over a morning coffee in your convenient seating area. Step inside to the welcoming foyer with double door closet, offering plenty of storage. This home is perfect for entertaining with an open concept main floor, allowing guests to easily flow from room to room. Fall in love with this fresh eat in kitchen space, updated with a gorgeous quartz countertop, modern subway tile backsplash, huge undermount stainless steel sink, tasteful panelled finishes, incredible amount of storage and walk out to your large, lovely and private backyard.
The 2nd floor features 3 large bedrooms including your master suite, perfectly suited to include a sitting area for quiet reading, walk in closet and 4-piece master ensuite with separate shower and large soaker tub for those relaxing evenings. The 2nd floor laundry room and additional 4-piece bath offering semi ensuite privilege is also super convenient for a busy family.
The beautiful spaces don’t end here. Head into the finished basement, complete with additional living space, workout area and separate office. This home has thought of everything, move in ready and perfect to sit back and enjoy!
$ 949,900
- 3 BEDS
- 2.5 BATHS
- 2046 SQ FT
FINISHED BASEMENT
HOME OFFICE
DOUBLE CAR GARAGE

LISA ROACH
475 Main Street East Milton, ON L9T 1R1 (289) 270-1719 [email protected]